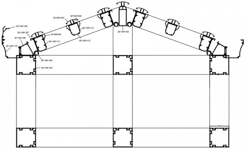
人字顶组装图
斜顶组装图
欧式阳光房型材
European Sunroom Profiles
标签:
欧式阳光房
欧式玻璃房
点击排行
526
1
阳光房案例C
401
2
欧式阳光房型材
341
3
阳光房效果图A
333
4
100阳光房水槽
327
5
阳光房效果图B
281
6
客户案例B
272
7
2019新品发布-120阳光房主梁及副梁
253
8
客户案例A
242
9
2017罗马柱阳光房
推荐产品
庭院灯散热器
80二轨推拉系列
流水线配件
异型材 6061 6005 608
精密电机铝壳体
明框玻璃幕墙型材
路灯散热器
85窗纱一体内开内倒(
阳光房效果图B
190三轨重型系列推拉
网站首页
|
企业简介
|
联系方式
|
Contact
|
隐私政策
|
Company profile
|
网站地图
|
排名推广
|
网站留言
|
违规举报
|
粤ICP备2023156392号
(c)2003-2019 电子游戏网站 SYSTEM All Rights Reserved
技术支持:广铝通网络